Апартаменты в Бяле, Болгария

Преимущества

- Бяла – приятный и спокойный городок на берегу Черного моря, в 55 км от Варны и в 70 км от Бургаса;

- Отличное местоположение дома, в тихом раоне ;

- Апартамент просторный, 2спальни,2 ванные комнаты, подвал, большая терраса с видом на море ;

- Капитальное строительство, продаеться с мебелью и техникой, готов для проживания.

Местоположение

Апартамент находится в черноморском городе Бяла – одном из самых экологически чистых мест болгарского побережья. Здание находится в центральной части города, в близости от банка, кафе, кондитерской и разнообразных магазинов.

Город Бяла

Спокойный и тихий провинциальный курортный городок Бяла в последние годы стал притягательным местом для людей, желающих отдыхать среди красивой природы и уюта.

Бяла очаровывает своими живописными пейзажами и невероятной красоты белыми скалами – едниственное место на черноморском побережье Болгарии, где можно увидеть такой природный феномен. Городок завораживает чистейшей экологией, спокойным морем и песчаными пляжами.

Это место идеально подходит для спокойного семейного отдыха и в последние годы недвижимость в Бяле купили множество семей из России, Украины, Германии, Израиля и других стран. В летний сезон на улицах города и на пляже больше слышна русская речь, нежели болгарская.

В г. Бяла нет промышленных объектов, а самые ближайшие крупные города Варна (55 км) и Бургас (70 км) удалены на значительном расстоянии. Вместе с тем Бяла обладает достаточно хорошим местоположением – приблизительно посередине между двумя большими городами и аэропортами.

Описание апартамента

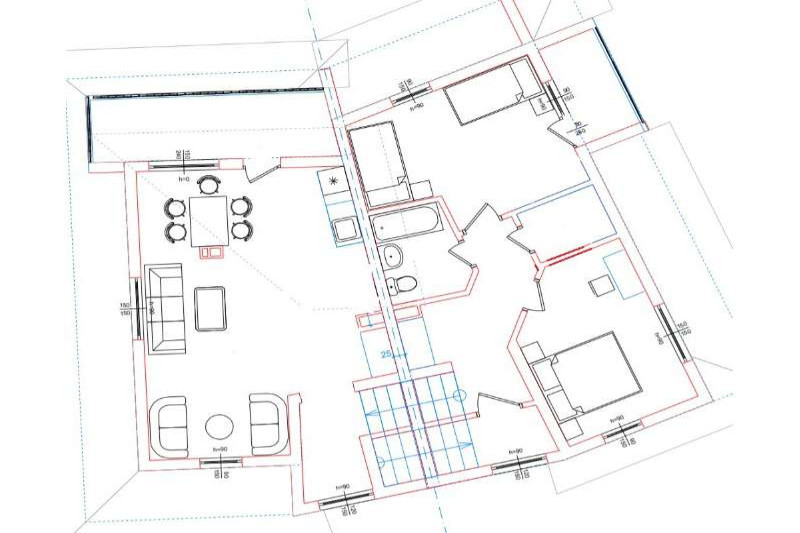
Предлагаем Вашему вниманию прекрасный просторый апартамент 112,78 м². с 2 спальнями, расположенный 2-м этаже. Есть 2 ванные комнаты.

Апартамент просторный с гостиной, где есть зона кухни и зона отдыха. Выход на террасу есть с гостиной и с одной спальни. Терраса большая и имеет хороший вид на море и территорию комплекса!

Находится в комплексе в 400 м от моря. Комплекс имеет 3 корпуса, имеет зону отдыха, 2 бассейна : большой и для детей, ресторан, фитнес, магазин, массажные кабинеты, паркинг, постоянную охрану!

Продается с мебелью и техникой, полностью готов к проживанию и отдыху.

Так же апартамент имеет подвал 5м² подземном этаже. Есть лифт и на последнем этаже большая панорамная терраса для общего пользования!

Таксы поддержки 9 евро за м² в год.

Комисия от покупателя 3%.

Дополнительно
Тип недвижимости:апартаменты
Вид недвижимости:вторичная
Всего комнат:3
Опции:бассейн, терраса / балкон, вид на море

ID: 212107 31.05.2022

  • 112 кв. м
  • 2 спальни
  • 2 ванных
65 000 €


Продавец мог не указать точные географические координаты. В таком случае метка на карте указывает на регион, в котором располагается объект.

Похожие объекты