Пентхаус в Эстепоне, Испания
Квартиры расположены в Эстепоне – одном из самых важных муниципалитетов на Коста-дель-Соль, благодаря его привилегированному расположению. Эстепона славится белоснежными домами, рыбацкими деревнями и типичной средиземноморской атмосферой. Кроме того, рынок недвижимости этого региона становится все более привлекательным для инвестиций.
Квартиры на продажу в Эстепоне находятся всего в 10 минутах от старого города Марбельи, в 5 минутах от Пуэрто Бануса и в 45 минутах езды на автомобиле от международного аэропорта Малаги.
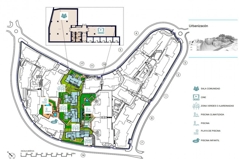
На территории жилого комплекса есть множество удобств: кинотеатр, спа с сауной, рабочие зоны, игровые комнаты, лифт, фитнес-центр, крытая и открытая автостоянки, круглосуточная система видеонаблюдения и охрана, общий бассейн и ухоженный сад.
В квартирах в Эстепоне установлены кондиционер, гардеробная, жалюзи, душевая кабина, ванна, кухонная техника, кухня открытой планировки, прачечная, кладовая и бытовая техника. В некоторых из просторных апартаментов есть терраса, солярий и дополнительная ванная комната. У каждой квартиры есть одно парковочное место на стоянке и кладовая. Апартаменты обладают удобным доступом к загородному гольф-клубу.
Примечание. Строительство комплекса ведется в несколько этапов. Первая очередь уже сдана в эксплуатацию. Первая половина второй очереди будет завершена в апреле 2021 года, а вторая половина – в сентябре 2021 года.
AGP-0105
| Дополнительно | |
|---|---|
| Тип недвижимости: | пентхаус |
| Вид недвижимости: | новая |
| Всего комнат: | 5 |
| Этажность: | 3 |
| Год постройки / реновации: | 2025 |
| Опции: | сад (частный), бассейн (частный), парковка, терраса / балкон |
ID: 218631 20.03.2023
- 105 кв. м
- 4 спальни
- 3 ванных





















































































































































































































